Квартиры

Переделка 2-комнатной хрущевки в Москве: после ремонта эту квартиру не узнать

Переделка 2-комнатной хрущевки в Москве: фото до и после ремонта

Когда переступаешь порог этой двухкомнатной квартиры, то с трудом веришь, что перед тобой обычная хрущевка. Стильный интерьер с неожиданными яркими акцентами, объединенная кухня-гостиная, спальня в классическом стиле и вместительная ванная комната — и никаких тесных кухонь, проходных комнат, старой сантехники и обоев из 90-х. Хотя еще совсем недавно эта квартира выглядела именно так.

РЕКЛАМА. ПРОДОЛЖЕНИЕ НИЖЕ

Нынешняя хозяйка целенаправленно искала убитую квартиру в советском фонде, чтобы сделать современный ремонт на свой вкус. Хрущевка идеально подошла под ее требования: хороший зеленый район и комфортная цена на недвижимость даже с учетом предстоящего ремонта.

Собственница обратилась к дизайнеру Ольге Цуриковой с просьбой разработать проект капитального ремонта этой квартиры.

Ольга Цурикова — основательница студии дизайна интерьера Zu Hause Design. По первому образованию — инженер-строитель, позже поступила в Международную школу дизайна и получила диплом дизайнера интерьера. Практикует в сфере дизайна с 2015 года. Специализируется на работе с жилыми и общественными пространствами.

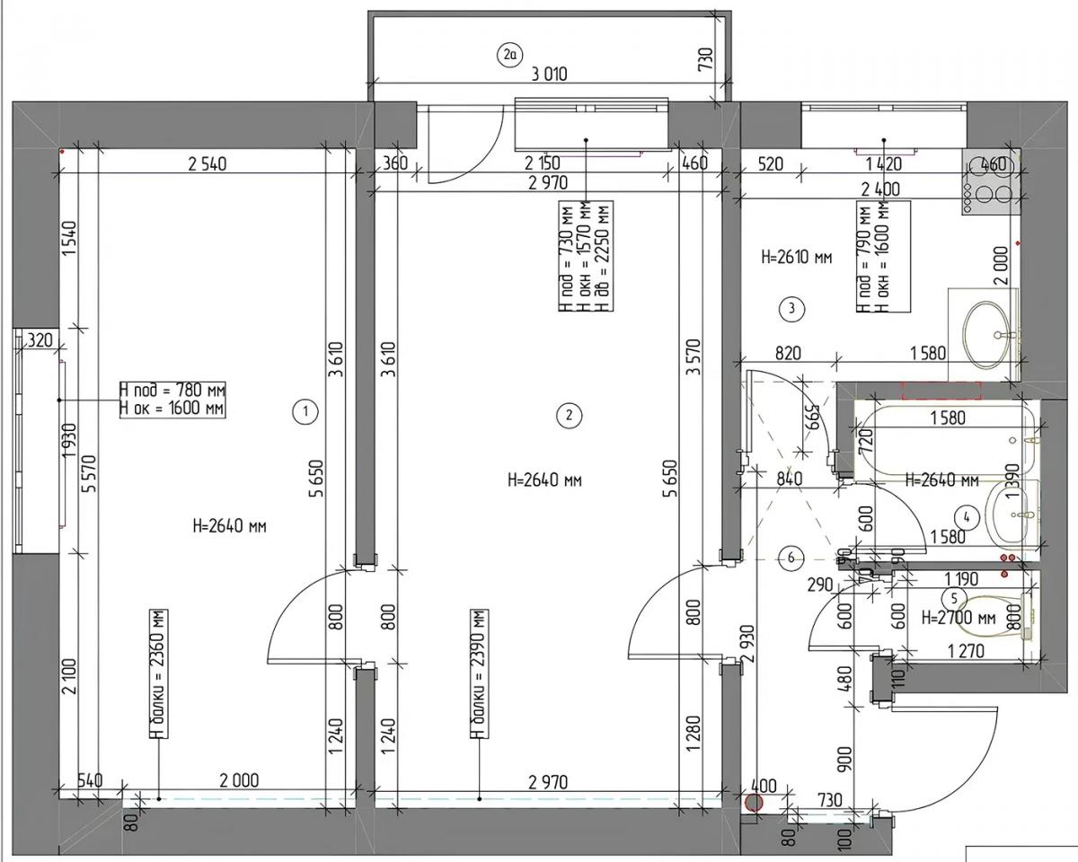
Так выглядела изначальная планировка квартиры:

Планировка 2-комнтаной квартиры 45 кв.м. в хрущевском доме

Общая площадь квартиры — 45 квадратных метров. Кухня маленькая, едва можно развернуться. Еще есть газ. Санузел раздельный и тоже очень компактный по площади. Смежная комната — проходная и темная.

Интерьер тоже оставлял желать лучшего. Старая сантехника, вырвиглазные синие обои в спальне, облупившаяся штукатурка — ремонт здесь не делали с момента постройки дома.

Первым делом дизайнер предложила сделать перепланировку.

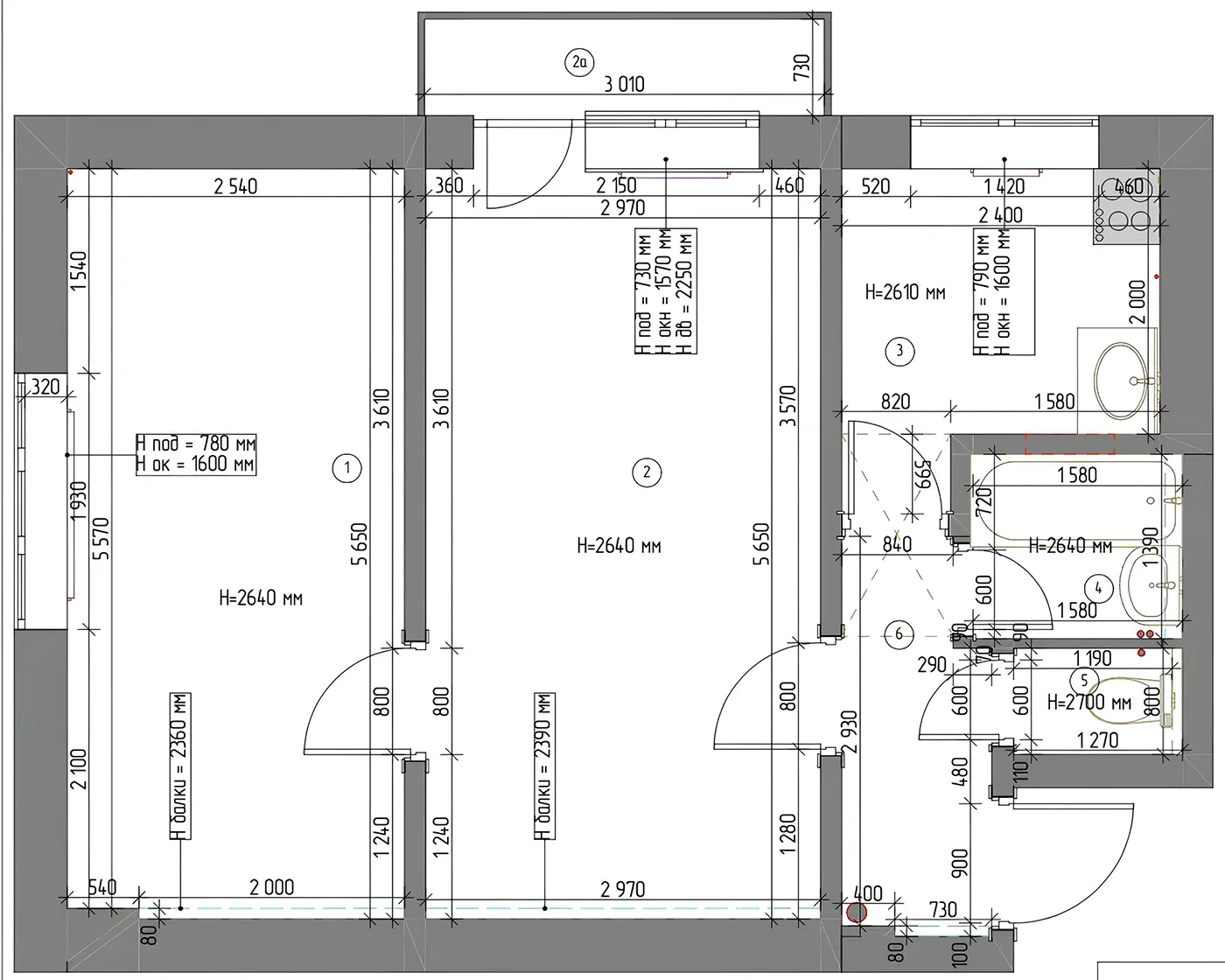
Обновленный план квартиры выглядел так:

РЕКЛАМА. ПРОДОЛЖЕНИЕ НИЖЕ
План 2-комнатной квартиры 45 кв.м. в хрущевке после перепланировки

Что изменилось после перепланировки в 2-комнатной хрущевке: санузел объединили с ванной комнатой за счет коридора, между смежной комнатой и кухней снесли стену — получилась просторная и светлая кухня-гостиная с обеденной зоной, часть коридора превратили в нишу и разместили там встроенный холодильник.

Как это выглядит в реальности — смотрите в обзоре SCANDIMAG.RU.

Отказ от газа и объединение кухни-гостиной в хрущевке

Гостиная с телевизором на стене, деревянным массивным столом и стульями в обеденной зоне у окна

Владельцам квартиры пришлось отказаться от газа, чтобы узаконить перепланировку. Но эта плата оказалась несоизмеримой с тем комфортом, который они получили взамен.

Совет от дизайнера интерьера: как отказаться от газа в хрущевской квартире

  1. Чтобы поменять газовую плиту на электрическую, первым делом нужно узнать в своем ЖЭКе или управляющей компании, можно ли вам увеличить мощность. Потому что в газифицированных домах не выделено дополнительной мощности на подключение электроплиты.
  2. Когда вы узнали, можно ли вам увеличить мощность, нужно сходить в Мосгаз и подать заявление на отключение газа. Увеличение мощности электричества также необходимо оформить документально (это можно делегировать специальным организациям, которые занимаются такими вопросами).

«В нашем случае повезло: в доме сделан капремонт и сосед сверху уже отказался от газа, поэтому в нашей квартире уже отсутствовала транзитная труба», — делится Ольга Цурикова.

Кухня в хрущевке с синими шкафами, натюрмортом с фруктами, круглым столом и чаем у окна

Обеденная зона частично находится в гостиной. Для холодильника за счет бывшего коридора выделили специальную нишу. Получилась компактная и красивая кухня в средиземноморских оттенках. Акцентный синий цвет преобразил все помещение.

Техническое окно между кухней и ванной комнатой решили сохранить — как источник дополнительного естественного освещения.

Дизайнер интерьеров Ольга Цурикова

На фото — дизайнер интерьеров Ольга Цурикова, разработавшая проект преображения этой 2-комнатной хрущевки.

РЕКЛАМА. ПРОДОЛЖЕНИЕ НИЖЕ
Дизайнерский ремонт гостиной в хрущевке. Вид из кухни

Диван раскладывается и при необходимости превращается в дополнительное спальное место. Зеркало над ним, сделанное на заказ, визуально расширяет гостиную и отражает солнечный свет из кухни.

Картина на стене — из Доминиканской республики. Ее когда-то подарили хозяйке квартиры. Папоротник в золотистом горшке на подставке отлично дополняет этот уголок.

Современная гостиная в серых тонах с белым диваном, большим зеркалом и папоротником в золотом горшке

В гостиной стало гораздо светлее за счет кухонного окна и балконного блока. Естественного освещения стало в 2 раза больше.

Гостиная с белым диваном, зеркалом и африканской картиной на стене, цветами в вазе и чайным сервизом на столе

Ремонт спальни: трендовый интерьер с элементами винтажа

Для спальни выбрали мягкие цвета с акцентом на дерево и текстиль.

Картина с женщинами в белых платьях и красных шляпах в спальне на бежевой стене

Автор картины на стене современная художница Анна Белан*.

«В этой спальне все говорит о том, что можно расслабиться и отдохнуть», — комментирует автор проекта Ольга Цурикова.

Уютная спальня с бежевым изголовьем кровати, круглым белым зеркалом, золотой настенной лампой, белыми цветами в вазе

Высота потолков в квартире — 2,65 метров. Но они кажутся гораздо выше благодаря визуальным эффектам.

Вместо обоев с орнаментом дизайнер выбрала молдинги, которые добавили дополнительный объем этой компактной спальне.

Светлая спальня в пастельных тонах, круглым белым зеркалом, картинами пейзажей
Спальня с винтажным дубовым шкафом для одежды и белым антикварным столиком

Настоящим украшением спальни стал большой винтажный дубовый шкаф, где хранится одежда хозяйки. Еще в самом начале сотрудничества с дизайнером она попросила каким-то образом интегрировать этот предмет мебели в будущий интерьер квартиры.

Но этот шкаф — не единственное место хранения в квартире. Вдоль стены в гостиной также есть вместительный шкаф длиной около 3 метров (его можно увидеть на обновленном плане в начале статьи).

Антикварный деревянный шкаф с зеркальными дверцами

Расширение санузла за счет коридора

Раньше санузел в этой квартире был раздельным. Но владельцы квартиры попросили объединить туалет и ванную комнату, а также предусмотреть место для стиральной машинки.

Санузел можно расширять только за счет нежилых помещений. В нашем случае это был коридор, который вел из прихожей на кухню, — рассказывает Ольга Цурикова. — Есть еще немало нюансов, но такая перепланировка вполне реальна. Для расширения санузла обязательно делается план-проект перепланировки, который впоследствии согласовывается. Обязательно должны быть акты у подрядчика с доступом СРО (это обязательное членство в профильной ассоциации, подтверждающее право на выполнение работ — прим.ред.).

Отремонтированная ванная комната получилась очень просторной.

Светлая ванная в классическом стиле в хрущевке с белой плиткой и золотистыми элементами

Штора из велюра — декоративный элемент. Она обыкновенная, не предусмотрена для защиты помещения от капель воды (обратите внимание на карниз, он всего длиной около полуметра). Эту штору сшили на заказ из трех тканей. Нижняя часть перекликается по цвету с верхней частью стены. Но при этом чуть выше карниза, в нише, есть направляющая, на которую при желании можно будет повесить классическую шторку для душа.

Вся плитка от Kerama Marazzi. Синяя лента-бордюрчик, разделяющая плитку двух видов, тоже от этого бренда.

Современный интерьер ванной в хрущевке с плиткой от Kerama Marazzi

«Интерьер этой квартиры очень отражает хозяйку. Она такая же яркая и стильная. Я повторяла и повторю еще много раз, что квартира получается индивидуальной, интересной, яркой и классной только, когда все это создается индивидуально. Нет никаких типовых решений. Ваш дом — это отражение вас», — объясняет дизайнер интерьеров Ольга Цурикова.

Красная дверь в прихожей — одно из пожеланий хозяйки квартиры. При этом она выбрала классический красный оттенок — как цвет помады. В результате эта идея отлично вписалась в будущий интерьер квартиры. Яркая дверь притягивает на себя внимание и задает тон всей обстановке.

Комод с львиными лапками, который стоит сейчас у двери, был сделан на заказ.

Вам понравится:

«Такой квартиры в Москве больше не найти»: яркое преображение унылой хрущевки от Павла Фотеева

Преобразили двушку в хрущёвке для пожилой мамы. Смотрите, что получилось

Ремонт в хрущевке: как преобразили обычную 2-комнатную квартиру в пятиэтажке

РЕКЛАМА


Telegram Scandimag
Общаемся, разглядываем лучшие интерьеры, делимся личными находками с OZON и Wildberries в нашем Telegram-канале. Присоединяйся!