Квартиры

Как создать уют в старой хрущевке: пример удачного ремонта в квартире 42 м² в Минске

Хрущевский дом в Минске / Обзор  интерьера 2-комнатной квартиры от дизайнера Ирины Первушиной

Эта 2-комнатная квартира находится в одной из типичных хрущевок Минска 1962 года постройки. Изначальная планировка была стандартной для того времени: маленькая кухня с узким коридором, объединенный санузел, проходная комната и компактная спальня.

Интерьер квартиры до ремонта

РЕКЛАМА. ПРОДОЛЖЕНИЕ НИЖЕ

Нынешние владельцы — молодая семья с ребенком — купили эту квартиру в 2019 году с расчетом на скорый капитальный ремонт дома. Но его пришлось ждать 5 лет.

Из-за этого семье пришлось отложить переделку своей новой квартиры: было нерационально затевать ремонт внутренних помещений, пока не отремонтирован весь дом (например, в будущем владельцы квартиры могли столкнуться с трудностями при массовой замене коммунальной инфраструктуры).

Все это время семья жила в интерьере, который остался от предыдущих жильцов. Удобства были ограничены: ребенку нужна была отдельная спальня, поэтому родители спали в гостиной, не имея личного пространства.

Когда капремонт дома наконец стартовал, хозяева обратились за помощью к дизайнеру интерьера Ирине Первушиной. Она разработала проект перепланировки хрущевки, продумала функциональные зоны, эргономичный интерьер и уютное оформление квартиры с учётом всех пожеланий семьи.

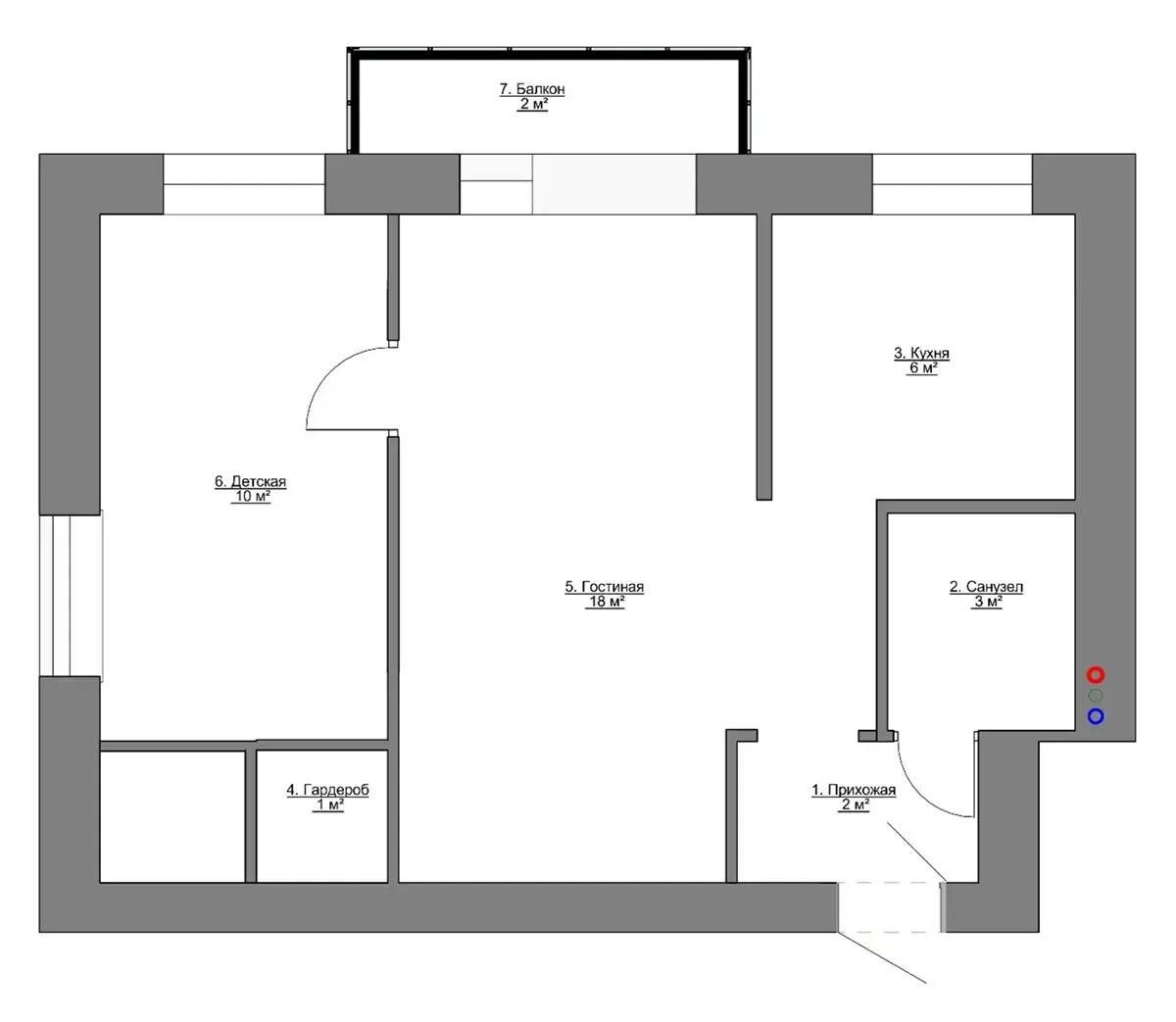
Так выглядела изначальная планировка 2-комнатной квартиры в хрущевке:

План 2-комнатной квартиры в хрущевском доме до перепланировки

«До ремонта в квартире все было не так: кухня без стола, гостиная, в которой временно жил брат-студент, одна спальня для всей семьи, совмещенный санузел с душевой, а хозяевам хотелось ванну… — рассказывает Ирина Первушина.

Поэтому все пожелания хозяев по планировке концентрировались на обычных человеческих потребностях: отдельное спальное место для родителей, изолированная детская для сына с перспективой «на вырост», нормальная кухня с обеденной группой, санузел с ванной, места для хранения и дополнительное спальное место для брата-студента.

Хрущевка после перепланировки

Переланировка 2-комнатной квартиры в хрущевском доме

Как выглядит готовый результат и какие идеи можно применить в собственной хрущевке — смотрите в эксклюзивном обзоре на SCANDIMAG.RU.

Тесную кухню объединили с гостиной: получилось просторно

Вход в кухню сделали из гостиной. Дверной проем заменили на раздвижную стеклянную перегородку: в квартире установлена газовая плита, поэтому без перегородки не получилось бы узаконить перепланировку.

Обеденную группу разместили в гостиной. Семья выбрала компактный круглый стол, за которым идеально уместятся три человека.

Кухня с терракотовыми шкафами, оранжевым фартуком, белой духовкой и узорчатым полом

Газовый счетчик убрали в левый верхний шкаф и вывели аккуратный черный шланг.

«Я не фанат прятать газовые шланги за какими-то полками. В этой квартире получилось очень аккуратно. Шланг никого не напрягает. Если присмотреться, то его немного видно, он находится за вазой с цветами», — рассказывает Ирина Первушина про нюансы ремонта старой кухни в хрущевском доме. 

Терракотовая кухня с оранжевым фартуком, черной раковиной, банками и тарелкой с яблоками

Терракотовый цвет для кухни выбран не случайно. Хозяйке квартиры очень нравилась одна картина в похожей цветовой гамме.

На окончательный выбор оттенка также повлияло расположение квартиры относительно сторон света: утром здесь много солнечного света. В сочетании с естественным освещением терракотовый цвет создает особую атмосферу уюта и тепла в доме.

«С терракотовым оттенком можно поиграть, приглушить, притушить. Он теплый, обволакивающий, не кричащий. Это не тот оттенок, от которого можно устать», — делится своим выбором дизайнер интерьера.

РЕКЛАМА. ПРОДОЛЖЕНИЕ НИЖЕ

Подоконник закрыли столешницей. Получилось небольшое обеденное пространство для одного человека и дополнительная рабочая поверхность для приготовления еды. Для крошечной кухни такое место — просто находка. А хозяйка квартиры очень любит готовить.  

Вид через стеклянную дверь на гостиную с круглым столом

Стеклянная перегородка гармонично вписалась в интерьер. При желании ее можно полностью задвинуть. Она не создает помех и неудобств.

В гостиной нашли место для отдельной спальни

Диван для гостиной выбирали из двух оттенков — синий и рыжий. Остановились на втором варианте, который максимально сочетается с терракотовой кухней и ассоциируется с теплом.

Гостиная с красным диваном, подушками, пледом, круглым столиком и картиной на стене

Для зонирования детской комнаты и родительской спальни пришлось демонтировать стену. Вместо нее возвели новую перегородку.

В результате получилось так: на месте бывшей мини-гардеробной (ее можно увидеть на первоначальном плане квартиры) разместили спальню-нишу, которую также отделили от гостиной с помощью стеклянной перегородки.

«Планировка получилась компактной, но очень функциональной. Местами счет шел буквально на сантиметры и миллиметры», — рассказывает дизайнер интерьера Ирина Первушина.

Кровать в нише за перегородкой в хрущевке

Родительская спальня получилась очень компактной. Но в нише удалось разместить полноценную двухспальную кровать, прикроватную тумбочку и вместительный шкаф для хранения одежды.

«Заказчица в шутку называет эту спальню чуланом под лестницей, как в Гарри Поттере. Конечно, стеклянная перегородка — это не дверь, но все же приватное пространство для родителей мы отвоевали», — рассказывает дизайнер интерьера Ирина Первушина.

Над изголовьем кровати висит фреска, нарисованная белорусской художницей Екатериной Осиповой. У хозяйки в Pinterest была сохранена подобная картинка: птицы на фоне гор. Художница помогла перенести адаптированный рисунок на стену.

Как выглядит детская комната в хрущевке

Детская спальня в нежно-голубых тонах с белой кроватью

До ремонта в этой комнате размещались родители вместе с ребенком. По сути, у сына не было отдельной детской, как и у родителей не было собственной спальни.

Подоконник превратили в полезное пространство: за этим столом мальчик рисует, делает поделки. В будущем будет делать здесь уроки.

Неказистые советские радиаторы спрятали за красивыми радиаторными решетками.

Деревянная полка с плетеными корзинками и игрушками

Детали интерьера в детской комнате.

Стены детской спальни принципиально не стали оклеивать яркими обоями. Но добавили акцент в виде рисунка на стене, как и в родительской спальне.

«В каждой детской комнате на стене должно быть что-то, что современные дети будут разглядывать также, как мы в свое время изучали узоры ковров», — объясняет Ирина Первушина свой замысел.

Мальчику предложили на выбор несколько рисунков. Он выбрал идею со зверятами на вертолете.

Ванная комната и прихожая в хрущевке после перепланировки

Ванная комната с терраццо стенами

Санузел расширили в сторону прихожей. Благодаря этому удалось найти место для полноценной ванны. Душевую кабину, которая стояла здесь до ремонта, демонтировали.

Прихожая с картиной Ван Гога, белой дверью, вешалкой с зонтом, ретро-фотоаппаратом и очками

«Ремонт и обустройство квартиры — от сноса стен до букета в вазе — длились 21 месяц. Так называемые грязные работы (снос стен, демонтаж полов, расчистка и перепланировка) были завершены за 3,5 месяца. Затем заказчики заехали обратно в квартиру и дальше потихоньку доделывали ремонт. Это было непросто, но ремонт в старом жилом фонде не мог быть другим», — подводит итог Ирина Первушина.

РЕКЛАМА


Telegram Scandimag
Общаемся, разглядываем лучшие интерьеры, делимся личными находками с OZON и Wildberries в нашем Telegram-канале. Присоединяйся!