Квартиры

Однушка в Мурино с мужским ремонтом. Как дизайнер переделал новостройку под себя

Мужской интерьер в стиле лофт в Мурино, дизайнер Кирилл Пономаренко

Новостройки в Мурино (Ленинградская область) пользуются сомнительной репутацией. Как их только не называют — бездушные бетонные коробки, человейники, унылые небоскребы. Но эта 1-комнатная квартира в ЖК «Созвездие», которую дизайнер интерьеров Кирилл Пономаренко отремонтировал лично для себя, доказывает обратное.

В новостройке на окраине Санкт-Петербурга ему удалось создать уникальное пространство: аскетичное, стильное, без шаблонных решений и с мужским характером.

Здесь есть матрас на полу, бетонные поверхности и перекрашенная мебель. Как выглядит современный мужской интерьер на 24-м этаже новостройки в Мурино — смотрите в обзоре SCANDIMAG.

Кирилл Пономаренко* — профессиональный дизайнер интерьеров со стажем работы более 14 лет. Работает в Санкт-Петербурге и Москве, занимается проектами «под ключ». Предпочитает лаконичные и мощные решения. Проекты Пономаренко неоднократно публиковались в крупных интерьерных журналах.

РЕКЛАМА. ПРОДОЛЖЕНИЕ НИЖЕ
Кирилл Пономаренко в квартире в стиле лофт
Кирилл Пономаренко

О проекте: от типовой отделки к авторскому стилю

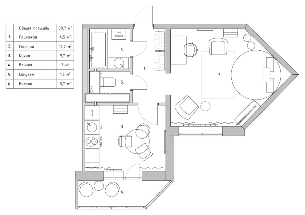
Квартира площадью 36 квадратных метров (почти 40 квадратов с учетом балкона) расположена в доме эконом-класса у метро «Девяткино». Изначально это было стандартное жилье с отделкой от застройщика.

Детали проекта:

  • Локация: Ленинградская область, Мурино, ЖК «Созвездие».
  • Тип дома: новостройка (2018–2019 годы постройки).
  • Площадь: 36 квадратных метров.
  • Бюджет: Стоимость аналогичных квартир в этом районе начинается от 7 миллионов рублей.

Хозяин этой однушки, Кирилл Пономаренко, переехал в Санкт-Петербург из Минеральных Вод. Пройдя путь от проектирования чужих интерьеров до покупки собственной квартиры, он решил не следовать модным трендам, а создать пространство, которое будет отображать его личность, интересы и хобби.

Планировка квартиры:

Планировка квартиры в Мурино

Планировка квартиры чем-то напоминает ракету. Единственная комната (она же спальня) довольно нестандартная: нужно было поломать голову, чтобы придумать, как разместить здесь типичную мебель. Но Кирилл Пономаренко придумал кое-что особенное.

Минусы планировки: очень низкие для новостройки потолки. Всего 2,5 метра. Поэтому Кирилл Пономаренко выбрал свой любимый лофт-стиль. Оставил голые потолки, чтобы не «съедать» пространство.

Грубая отделка, бетонная фактура, много темной мебели — то, что отличает эту холостяцкую квартиру от других.

Однушка после ремонта: честный обзор мужского интерьера

РЕКЛАМА. ПРОДОЛЖЕНИЕ НИЖЕ
Коридор в стиле лофт в квартире

Спальня выделяется причудливой и непрактичной формой. Здесь пять углов и окно. Кириллу Пономаренко пришлось поломать голову, чтобы придумать, как разместить здесь кровать и другую мебель.

Для себя хозяин однушки выбрал круглую кровать-матрас, которая буквально лежит на полу. Такой формат спального места оказался для него максимально удобным и комфортным.

Единственное неудобство — постельное белье и одеяло каждое утро приходится убирать в красный комод под телевизором (других шкафов в спальне нет).

Серые стены и бетонные потолки в гостиной

За уют здесь отвечают не только текстиль и растения, но и домашний питомец — любимый котик Кирилла, который во время фотосъемки контролировал каждый шаг фотографа.

Из мебели в спальне выделяются: кастомизированный открытый стеллаж из IKEA (хозяин покрасил его в черно-красный цвет), яркий комод и такая же прикроватная круглая тумбочка.

Еще из необычного: на одной из стен продолжается напольное покрытие из ламината. Неординарное и смелое решение.

Черный матрас н полу в квартире в стиле лофт

Дверной проем из спальни в прихожую остался голым и необработанным. Двери нет. По периметру — шершавый бетон.

Географическая наклейка на серой стене в гостиной

Тут же, в спальне, оборудовано рабочее место. Над компьютером — интерьерная географическая наклейка, которую Кирилл купил на маркетплейсе.

РЕКЛАМА. ПРОДОЛЖЕНИЕ НИЖЕ
Стена из ламината, серый стул, стеллаж и большое напольное зеркало
Стильная географическая наклейка на серой стене над рабочим местом
Необработанный стены и потолок в квартире

На кухне грубые детали (все тот же бетонный потолок, черная стена за кухонным гарнитуром, темная мебель) сочетаются с нежным тюлем и растением почти до потолка.

Белый круглый стол на кухне

Разные стулья — еще один нетипичный прием, который бросается в глаза.

Разные стулья на кухне в стиле лофт
Кухня тёмно-серых тонах
Кухня с черной дверью
Современная кухня в стиле лофт в Мурино

Санузел раздельный. В туалетной комнате — полный блэкаут. Темно, но стильно. В шкафчике над унитазом хранится бытовая химия и запасы бумаги.

Черный с серыми элементами туалет в квартире
Ванная комната в серых оттенках
Современная ванная комната с большим круглым зеркалом на стене

В этой однушке Кирилл многое делал своими руками: хотел отточить ремонтные навыки и сэкономить на рабочих.

Интерьерные фишки этой 1-комнатной квартиры, которые стоит взять на заметку

  1. Бюджетный лофт: вместо имитации кирпича предпочтение отдали настоящему бетонному потолку и открытым дверные проемы без отделки. Это позволило сэкономить на ремонте и внести аскетичную мужскую атмосферу в интерьер.
  2. Кастомизация: даже привычный стеллаж из IKEA здесь выглядит иначе — его перекрасили в глубокий черный цвет, чтобы он вписался в общую концепцию. Переделка недорогой мебели чаще всего играет на руку дизайнерам интерьеров и добавляет уникальности в дизайн конкретной квартиры.
  3. Функциональный минимализм: аскетичная гардеробная в прихожей экономит пространство, не перегружая жилую зону лишними шкафами.

Этот интерьер — пример того, как при ограниченном бюджете и в обычном доме эконом-класса можно создать необычное пространство с характером.

Фотографии: Дмитрий Цыренщиков

Вам понравится:

Как дизайнер обустроил студию 22 кв.м. в Сочи: рассматриваем умные приемы в крошечной квартире

Из коммуналки в Петербурге сделали стильный лофт: обзор ремонта от дизайнера Серафимы Гавриленко

Хрущевка в стиле лофт. Что мужчина сотворил с квартирой — обзор нетипичного ремонта

РЕКЛАМА


Telegram Scandimag
Общаемся, разглядываем лучшие интерьеры, делимся личными находками с OZON и Wildberries в нашем Telegram-канале. Присоединяйся!