Маленькие квартиры

Жизнь в центре Петербурга: стильная студия 30 м² в бывшем заброшенном доме

Эта студия — хороший пример реконструкция старого жилого фонда в центре Санкт-Петербурга. Она находится в бывшем доходном доме купца Киселева 1907 года постройки.

Внешний вид доходного дома купца Киселева 1907 года

У дома сложная судьба. Здание пустовало почти 25 лет, его несколько раз продавали с торгов, но каждый раз инвесторы бросали работу по реновации исторического объекта, едва начав.

В 2010-х годах здание перевели в нежилой фонд, чтобы переделать под гостиницу. Но и эта попытка оказалась тщетной: власти не сумели найти желающих взяться за такой масштабный объект.

Ситуация изменилась несколько лет назад, когда дом продали с торгов компании, специализирующейся на переделке исторических зданий в апарт-отели.

РЕКЛАМА. ПРОДОЛЖЕНИЕ НИЖЕ
Желтый фасад здания с двумя окнами

Реконструкция здания длилась с 2022 по 2024 годы. Внутри переделали абсолютно все — убирали стены, полностью демонтировали полы, восстанавливали перекрытия и меняли инженерные сети. Снаружи фасад остался нетронутым.

В доме после реновации обустроили 139 малогабаритных апартаментов. Площадь самой маленькой студии всего 14 квадратов. Самые большие — однушки площадью до 33 квадратов.

Здание по-прежнему числится нежилым. Прописаться в апартаментах нельзя, а владельцы платят повышенные налоги и коммуналку.

Как такое жилье выглядит внутри — смотрите в обзоре SCANDIMAG.RU.

Прогнившие деревянные полы заменили на железобетонные конструкции. Историческую кирпичную кладку со стороны фасада бережно отреставрировали и сохранили. Планировку апартаментов оставили на усмотрение будущих собственников.

На фото выше: так студия площадью 30 квадратных метров, расположенная в этом доме, выглядела перед началом ремонта. Новые владельцы апартаментов обратились к дизайнеру Екатерине Шейн с просьбой разработать интерьер под краткосрочную сдачу.

Екатерина Шейн — обладательница платинового диплома премии «Золотой Трезини» 2024, ее работы входили в шорт-лист премий Divan.ru, ADD awards 2024. В общей сложности на счету дизайнера более 30 реализованных под ключ проектов в Санкт-Петербурге. В их числе несколько апартаментов площадью до 30 квадратных метров.

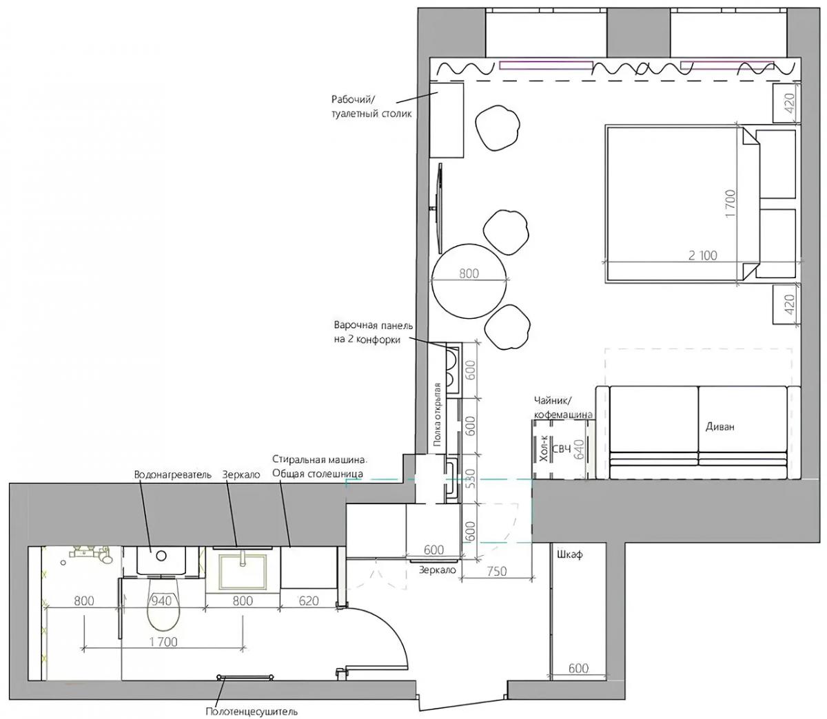
Планировка студии в бывшем доходном доме купца Киселева после ремонта:

РЕКЛАМА. ПРОДОЛЖЕНИЕ НИЖЕ
План квартиры-студии 30 кв.м.

Студия оказалась нестандартного размера. Под комнату отводилось маленькое пространство. Длинный узкий коридор рядом с прихожей пришлось отдать под ванную комнату.

Кухня с высоким окном, кирпичной стеной, тюлью, черным столом и белыми стульями

Дизайнер выбрала нестандартную планировку для этой студии. В классических вариантах кухня обычно располагается на месте дивана (рядом с кроватью). Но в этой студии пришлось учитывать много нюансов исторического здания, переведенного в нежилой фонд.

Светлая спальня в квартире-студии с белой кроватью, бежевым покрывалом, коричневыми подушками и кирпичной стеной

Кирпичную стену начала 20 века почистили и отреставрировали. Такая же стена была и за кроватью, но ее закрыли молдингами.

Уголок у окна в квартире с настенным телевизором, белым туалетным столиком, высоким зеркалом, пуфом с бахромой и растениями в вазах на подоконнике

Возле окна организовали небольшое пространство для макияжа и ухода за собой. При желании его можно использовать как рабочее место, когда нужно поработать за ноутбуком.

РЕКЛАМА. ПРОДОЛЖЕНИЕ НИЖЕ
Элегантный уголок спальни в компактной квартире с белой кроватью, коричневыми подушками, черной тумбочкой, торшером и открытым журналом на покрывале

Широкая двухспальная кровать сделана на петербургской мебельной фабрике ZEBO MEBEL.

Элегантный уголок в квартире-студии с коричневым диваном, напольной лампой, картиной на полке

При необходимости небольшой диван раскладывается и превращается в дополнительное спальное место шириной 150 см. Дизайнер подбирала мебель с учетом будущих планов собственников о сдаче апартаментов в аренду туристам.

Вид на обеденную зону в квартире-студии 30 кв.м. Черный круглый стол, белые стулья, коричневый диван

Кухню на входе в единственную комнату, прямо напротив входной двери, разместили неспроста.

«При разработке планировки пришлось учитывать, что труба канализации проходит в отдаленном месте квартиры — в самом конце санузла. И кухню, включая мойку, надо было разместить так, чтобы можно было без труда подвести коммуникации, то есть максимально близко к санузлу», — объясняет дизайнер интерьеров Екатерина Шейн.

Интерьер современной квартиры-студии с коричневым диваном, небольшим обеденным столом со стульями, мини-кухней с мраморным фартуком и паркетом в "елочку"

Рассматривали еще один вариант — размещение кухни в прихожей, но Екатерина Шейн отказалась от этой идеи.

«Студия достаточно большая, 30 квадратов. И размещать кухонный гарнитур в прихожей казалось странным решением. Поэтому я разместила кухню на входе в комнату и разделила на две функциональные зоны:

1. Мойка + рабочая зона с варочной поверхностью. Глубина модуля с мойкой 50 см, а рабочей поверхности и места установки варочной всего лишь 35 см.

2. Модуль с мини-холодильником и ящиком под микроволновку над ним с другой стороны. На столешнице разместили чайник и кофемашину», — объясняет дизайнер интерьеров нюансы планировки.

Кухонная зона в студии с мраморным фартуком, черным обеденным столом, белыми стульями, телевизором на стене и цветами в вазе

Плитка для фартука с эффектом натурального камня обошлась всего в тысячу рублей за квадратный метр. Ее удалось купить со скидкой на распродаже.

Черный обеденный стол от Фабрики доступной мебели Delacosa. Вместе с доставкой из Москвы он обошелся в 10 тысяч рублей.

Компактная ванная комната с душем за шторкой, белыми цветами на умывальнике, черным зеркалом, полотенцесушителем и мраморным полом в черно-белых тонах

Санузел получился просторным благодаря нестандартной планировке апартаментов. Здесь удалось разместить все необходимое: от стиральной машинки (она спрятана за шторой под столешницей) до бойлера.

Стильный умывальник в ванной комнате с черным фигурным зеркалом

Все хранение расположено в прихожей. Там есть шкаф для одежды и отдельный шкафчик для горничной с хозяйственным отсеком для уборочного инвентаря.

Узкий коридор с белыми шкафами, зеркалом и ламинатом в елочку

После реновации апартаменты в бывшем доходном доме купца Киселева продавались по средней цене примерно 298 тысяч рублей за квадратный метр.

Сейчас в активной продаже находятся больше 10 квартир.

На Авито за апартаменты площадью 13,5 квадратов просят 4 миллиона 500 тысяч рублей. За апартаменты площадью 30 квадратов, как студия в этом обзоре только без ремонта, просят больше 8 миллионов рублей.

В некоторых квартирах новые собственники не сохранили аутентичную кирпичную кладку.

Фотографии: Кристина Плеер

Жизнь в старом фонде Петербурга всегда наполнена особой атмосферой. Если вам близок дух этого города, обязательно посмотрите наш обзор атмосферной квартиры 49 м² с ретро-деталями — еще один пример того, как бережно можно обновить жилье с историей».

РЕКЛАМА


Telegram Scandimag
Общаемся, разглядываем лучшие интерьеры, делимся личными находками с OZON и Wildberries в нашем Telegram-канале. Присоединяйся!