Дома

Построили тини-хаус на юге России. Как выглядит внутри и снаружи дом площадью 32 квадрата

Денис и Эмилия Пасечные давно мечтали об уютной даче, где можно было бы отдыхать от городской рутины. Но рынок недвижимости отпугивал — хорошие дома стоили дорого, а на свой бюджет они могли позволить себе только старые дачи в упадническом состоянии, которые требовали больших вложений. В итоге Пасечные самостоятельно спроектировали и построили компактный домик по концепции tiny house со вторым светом и высокими потолками.

Tiny House (тини-хаус) — это полноценный жилой дом площадью до 40 квадратов, воплощающий идею осознанного минимализма и свободы от лишних вещей. Несмотря на компактность, внутри есть все необходимое для жизни: от современной кухни до уютной спальни на втором ярусе.

РЕКЛАМА. ПРОДОЛЖЕНИЕ НИЖЕ

Супруги купили участок земли в охраняемом СНТ неподалеку от станицы Каневской в Краснодарском крае (население станицы больше 40 тысяч человек, до Краснодара добираться примерно 130 км, примерно столько же до Ростова-на-Дону).

Денис по профессии — архитектор и строитель, Эмилия — фотограф и дизайнер (работает под псевдонимом Мила Пас).

Дизайн маленького дома они придумали сами. Ставку сделали на натуральные материалы в отделке.

Материалы: дерево, морская трава, лен, бамбук.

Стиль: сканди-бохо.

Акценты: винтажная дверь с Авито, индийский декор.

Технические характеристики каркасного дома 6х4 для круглогодичного проживания

  • Дом построен по каркасной технологии.
  • Размер основания по внешней стороне 6х4 метра.
  • Материал: брус.
  • Утепление минеральной ватой 100 мм.
  • Сделано: ветроизоляция, гидроизоляция, пароизоляция, защита от грызунов и птиц по контуру и снизу.
  • Жилая площадь — 31,9 квадратных метров.
  • Площадь участка — 5,3 сотки.
  • Дача полностью приспособлена к круглогодичной жизни. Здесь есть канализация (септик) и водоснабжение (собственная скважина во дворе).
  • Дом зарегистрирован и находится на кадастровом счете, статус — жилой.

«Идея дома заключалась в создании пространства из натуральных материалов: дерева, морской травы, растений, льна, бамбука и хлопка, в атмосфере которого можно раствориться и полностью перезагрузиться. Мы хотели создать дом, в котором чувствуешь себя его частью, который отражает твои взгляды на жизнь, в котором чувствуешь себя комфортно, светло и очень эстетично», — рассказывает Эмилия Пасечная.

Как загородная дача семьи Пасечных, построенная по концепции tiny house, выглядит снаружи и внутри — смотрите в обзоре SCANDIMAG.

Зимой в домике тепло, а летом — комфортно и не жарко благодаря хорошей вентиляции и системе кондиционирования.

Крышу сделали из древесноволокнистых плит. Входная дверь — REHAU с тонировкой и двойным остеклением.

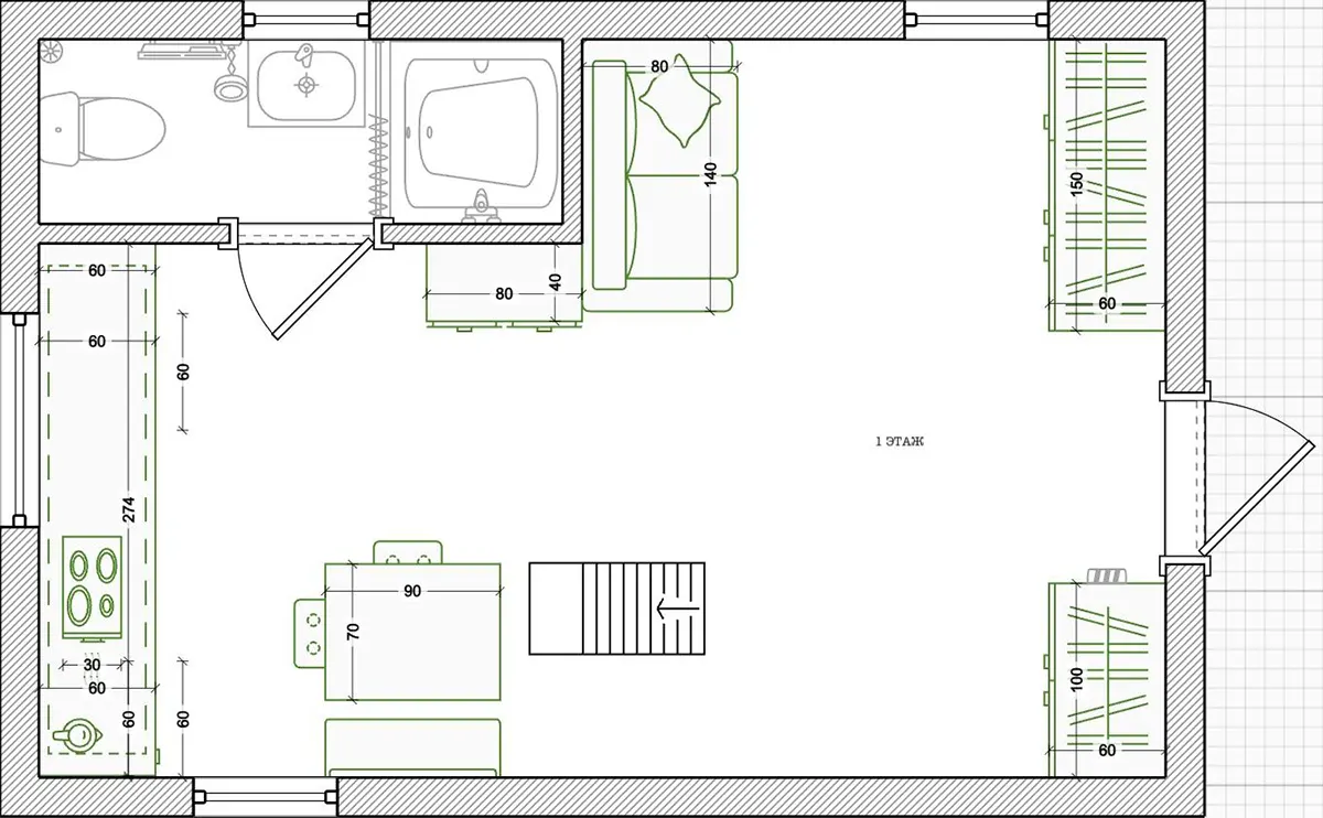
Планировка каркасного дома 6 на 4 метра

На первом этаже расположены кухня-гостиная и санузел с душевой кабинкой. Тут же предусмотрены вместительные шкафы для хранения.

Спальню разместили на антресолях — в домике высокие потолки (4,2 метра), что позволило оборудовать жилой чердак.

Дизайн кухни в тини-хаусе: как уместить технику на 30 метрах

РЕКЛАМА. ПРОДОЛЖЕНИЕ НИЖЕ

Почти весь декор Денис и Эмилия сделали своими руками. Лишь некоторую часть вещей они привезли из недавнего путешествия в Индию.

На кухне есть все необходимое для приготовления еды и уборки. На небольшом пространстве уместились стиральная машина Indesit, мини-холодильник Ascoli, варочная панель и электрический чайник DeLonghi — заказать такой стильный оливковый чайник можно из-за рубежа через отечественные маркетплейсы (например, по этой ссылке на Яндекс-маркете).

Раковину разместили напротив окна, чтобы можно было мыть посуду и наслаждаться видом на зеленый внутренний двор.

От верхних шкафов отказались осознанно: они утяжеляли небольшое пространство и давили на атмосферу, да и в них не было особой потребности — на даче, куда приезжают только на выходные и летом, не так много кухонной утвари.

А обычным шторам Эмилия предпочла бамбуковые жалюзи.

«Свет проходит через штору и создает очень красивый светотеневой рисунок, — объясняет она свой выбор. — Такие шторы мы повесили в ванной комнате и в зоне кухни».

В доме очень много растений. Они освежают интерьер и добавляют яркости в сканди-стиль с элементами бохо.

Справа расположены шкафы для хранения вещей и одежды. Дверцы — обычные жалюзи из натурального дерева, покрытые краской в тон стен. Их фактура красиво прорисовывается по-разному в зависимости от естественного освещения и времени суток.

Супруги отказались от телевизора в пользу компактного проектора (для дачи они выбрали кинопроектор WANBO), который не занимает много места в интерьере.

А за этой дверью находится ванная комната.

«Дверь в ванную комнату мы выбирали очень долго. В итоге нашли ее на Авито. Удивительно, но мы искали именно эту дверь. Массив бука с интересным узором из стекла и резными деревянными элементами в балийском стиле. Мы тщательно отреставрировали дверь и покрыли ее влагостойким пропиточным маслом. Ручки были специально состарены, чтобы добиться желаемого эффекта. Эта дверь — изюминка дома», — рассказывает Эмилия Пасечная.

Маленький санузел 3 кв.м. с окном: идеи отделки и хранения

Площадь ванной комнаты — всего 3 квадратных метра. Денис и Эмилия долго думали, как на этом крошечном пространстве уместить все необходимое для комфортной жизни на даче. В результате нашлось место для санузла, раковины с деревенской шторкой (за ней спрятан стеллаж с бытовой химией), компактного душа и бойлера.

Особенность этого дачного санузла — окно с бамбуковой шторой, которое стало источником естественного освещения в темном маленьком помещении.

Половицы в санузле, как и во всем доме, покрыты матовым высококачественным лаком.

Стены ванной комнаты окрашены влагостойкой краской, а душевая отделана ПВХ-панелями под дерево.

Спальня на антресоли с местами для хранения

На условном втором этаже практически нет свободного места. Все пространство занимает большой матрас размером 160х200 см. По бокам от него расположены места для хранения постельного белья и одежды, которые закрыты льняными шторками. 

«Мы сделали антресоль дня сна больше, чем в классических tiny house. В нашем доме она выше и шире. Здесь комфортно размещаются два взрослых человека и есть возможность хранения по бокам», — рассказывает Эмилия Пасечная.

Фотографии: Эмилия Пасечная

Вам понравится:

Вот это дача! На 10 м² сотворили настоящее чудо — смотрите, что внутри

Построили крошку-домик в лесу под Петербургом: удивительная (и простая) дача

Построили крошечный домик площадью 18 квадратов в России (здесь можно жить круглый год)

РЕКЛАМА


Telegram Scandimag
Общаемся, разглядываем лучшие интерьеры, делимся личными находками с OZON и Wildberries в нашем Telegram-канале. Присоединяйся!