Дома

Из участка с сорняками сделали уютную крошку-дачу 42 кв.м. Обзор домика в Сергиев-Посаде

История этой дачи началась в 2021 году, когда семья Собыленских купила участок земли в одном из подмосковных СНТ. Это был заросший сорняками и кустарниками пустырь, которым 30 лет никто не занимался. Без каких-либо построек, зато с небольшим прудиком.

Вот как выглядел участок на тот момент:

Собыленские купили этот участок весной, а уже осенью того же года здесь красовался уютный домик.

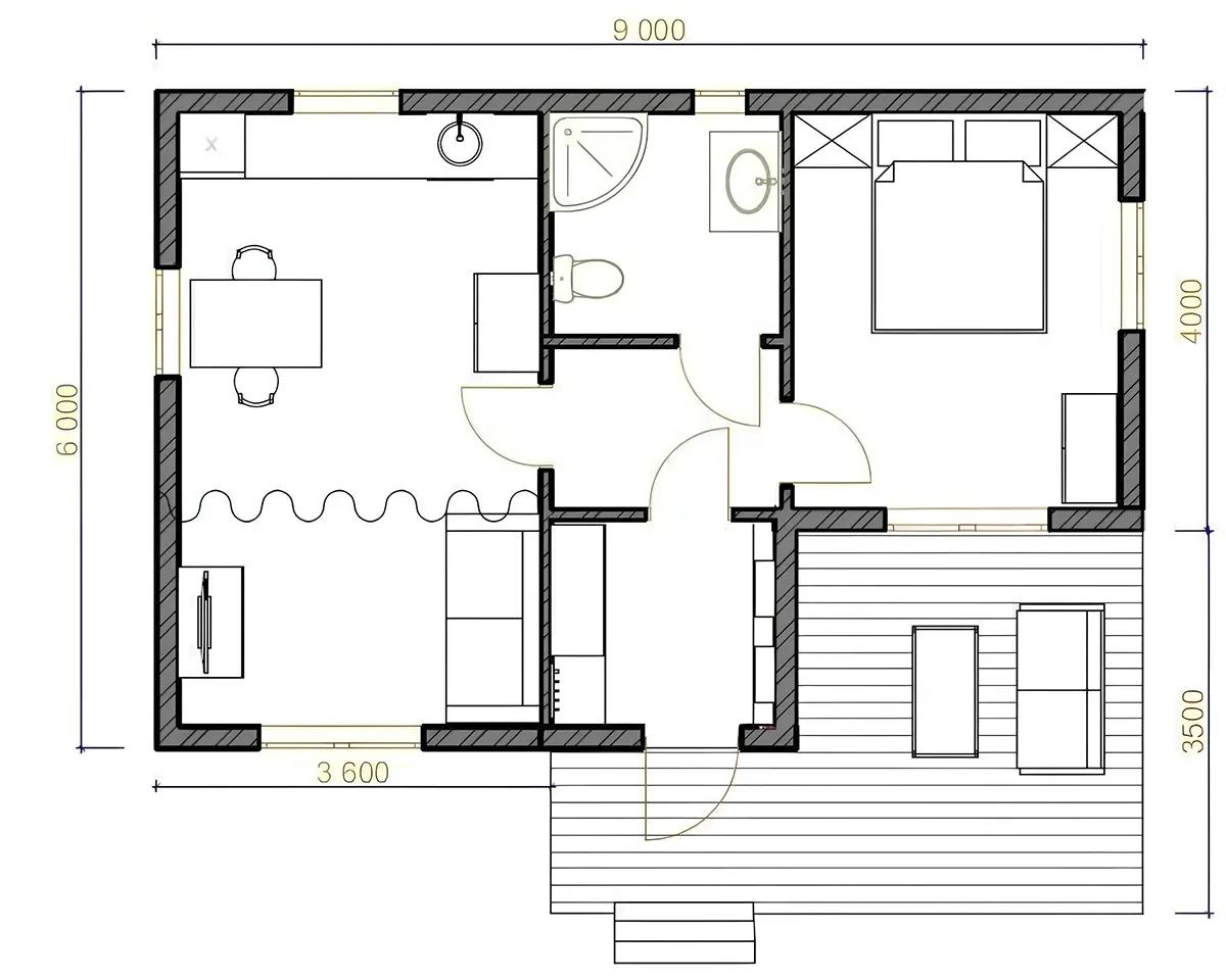
У Ирины было несколько пожеланий к будущей даче: один этаж, компактность, два основных помещения, большие окна и много света, просторная веранда.

— Планировка всегда начинается не с размеров помещения, а с определения состава семьи, образа жизни и бытовых привычек, — объясняет Ирина, которая сама работает дизайнером и редактором INMYROOM. — Например, почему мне хотелось только один этаж? Потому что я не люблю лестницы. И с возрастом подниматься по ним буду любить ещё меньше.


РЕКЛАМА. ПРОДОЛЖЕНИЕ НИЖЕ

На такой планировке остановились Ирина и ее супруг.


При выборе домика Собыленские рассматривали разные варианты, но в итоге выбрали каркасник. «Коробку» возвела строительная компания, а вот всё остальное — от коммуникаций до отделки — супруги сделали сами.

Что по деньгам? Сейчас такие расценки уже неактуальны — три года прошло, но все равно поделюсь цифрами: фундамент и сам домик (включая утепление, окна и так далее) обошелся в 1,2 миллиона рублей, внутренняя начинка (отделка, освещение, мебель) — еще в 350 тысяч. На мой взгляд, получилось бюджетно.

В процессе стройки. Кстати, пользоваться дачей можно круглогодично — домик хорошо утеплен (200 мм оказалось достаточно для московской зимы). В зимнее время отапливается конвекторами, вода есть всегда и ее можно пить прямо из-под крана.

— В зимние месяцы обогрев домика выходит около 4000-5000 рублей за все электричество. За морозный январь 2024 года я заплатила 5400 рублей, — делится подсчетами Ирина. — Весной и осенью платим около 2000-2500 рублей.


Голубой домик Ирины Собыленской

Так домик выглядит сейчас. Смотришь на фото — и кажется, что перед тобой одна из финских дач, стоящих на берегу Финского залива. Но нет, это простое подмосковное СНТ.


Семья Собыленских — это муж, жена и эстонская гончая. В свое время именно щенок, по словам Ирины, подтолкнул их с супругом к мыслям о собственной даче — хотелось иметь изолированное место, где можно отдыхать и отпускать охотничью собаку на самовыгул.


Детали интерьера. На стене в качестве декора использована архивная обложка журнала The New Yorker.


Планировку дачного домика сделали слегка необычной: совмещенная кухня и гостиная (именно здесь супруги проводят максимум времени), плюс просторная спальня.

— Обычно в таких небольших домиках делают две крошечные спальни, но мы передвинули перегородку, чтобы поместились большая кровать и комод. А оставшуюся площадь отдали под веранду, — рассказывает Ирина, хозяйка уютной дачи.


РЕКЛАМА. ПРОДОЛЖЕНИЕ НИЖЕ

Синий гарнитур на кухне — удачный выбор в качестве акцента. Этот оттенок хорошо смотрится в светлом интерьере. Плюс его можно подчеркнуть деталями. Например, скатертью и посудой, как это сделала хозяйка.

— Нас с мужем двое, я не готовлю борщи 10-литровыми кастрюлями и не пеку пироги. Кто готовит и печет, у того будет другая кухня, — объясняет Ирина свой простой интерьер.

Никаких верхних шкафов, парочка открытых полок для хранения красивой посуды, стильный шкаф-витрина и компактный столик на двоих. Мне нравится! Я бы сделала всё также для себя.

Из техники здесь есть всё необходимое: переносная плитка, мини-холодильник, микроволновка. На улице стоит мангал, который часто используют летом.


На стенах — вагонка, покрашенная в белый цвет. А для пола, обратите внимание, выбран светло-серый оттенок. Приятная и нескучная комбинация.


Обожаю красивую посуду и керамику в интерьерах. Подсвечники и ваза — шикарные!


И еще немного уютных деталей, отвечающих за атмосферу.


Этот комод — творение хозяйки. Ирина купила дешевую тумбу из ЛДСП на Вайлдберрис, перекрасила ее, поменяла ручки и ножки. Получилось бюджетно и симпатично. Такой тумбы точно ни у кого больше нет!


В домике всего одна спальня, но для небольшой семьи этого вполне достаточно. Бонус: панорамные окна и возможность выйти на большую веранду.


Ирина показывает свою любимую деталь в спальне — икеевский светильник-трансформер с текстильными лепестками.


В домике есть полноценный санузел, где можно умыться, принять душ, сходить в туалет — далеко не каждая дача может похвастаться такими удобствами (здесь есть даже бойлер!).


Обои с рыбками и рыжий потолок (кстати, заметили, что оттенок подобран под цвет одной из рыбок?).


— Наш интерьер подстраивается под разные сезоны, праздники, одинаково «любит» скатерти с оленями, новогоднюю ёлку и весеннюю пасхальную сервировку. Спокойно сочетает ИКЕА, малоизвестные бренды, перекрашенную собственными руками мебель и винтажный декор, — говорит Ирина про свою чудо-дачу.

Так домик выглядит снаружи.


Весной и летом на веранде всегда уютно. За этим столом супруги любят ужинать на свежем воздухе.


Сам участок пока в процессе обустройства. Этой весной здесь впервые появился газон (землю вскопали и засеяли травой).


А вот и тот прудик, который привлек внимание супругов перед покупкой домика. Здорово иметь такой водоем на собственном участке!


Красота, правда?

На этом экскурсия по даче семьи Собыленских подошла к концу. Как вам домик? Хотели бы себе такой?

Фотографии: Ирина Собыленская

Вам понравится:

Построили крошку-домик в лесу под Петербургом: удивительная (и простая) дача

Одна из самых уютных дач в России. Как выглядит внутри этот голубой домик?

Построили крошку-домик в лесу под Петербургом: удивительная (и простая) дача

РЕКЛАМА


Telegram Scandimag
Общаемся, разглядываем лучшие интерьеры, делимся личными находками с OZON и Wildberries в нашем Telegram-канале. Присоединяйся!